Generalübernehmer 

Dank unserer langjährigen Erfahrung bei der Planung und Umsetzung von Immobilien, sind wir Ihr kompetenter und zuverlässiger Ansprechpartner!

Als Generalübernehmer setzen wir für Sie Ihre Baumaßnahme vollständig um. Wir bauen Ihr Einfamilienhaus, Reihenhaus, Doppelhaushälfte oder übernehmen Ihre ganzheitliche Sanierung. Sie erhalten einen Ansprechpartner für die schlüsselfertige Erstellung der Immobilie.

Sie besitzen bereits ein Grundstück, auf dem Sie gerne bauen möchten oder planen einen Umbau oder eine Sanierung? Dann wenden Sie sich direkt an uns und wir setzen gemeinsam mit Ihnen Ihr Traumprojekt um. Als Generalübernehmer übernehmen wir für Sie die schlüsselfertige Errichtung der Immobilie. Durch unsere langjährige Erfahrung in der Konzeption, Planung und Errichtung von Immobilien steigt die Bauqualität, es sinken die Herstellungskosten und die Bauzeit sinkt. Sie haben einen festen Ansprechpartner für alle Gewerke und können nach Fertigstellung in Ihre Traumimmobilie einziehen.

Folgende Leistungen übernehmen wir für Sie!

Grundlagen/ Entwurf

  • Prüfung Ihres Grundstückes oder Bestandsgebäudes 
  • Konzeption der Neu- oder Umbaumaßnahme
  • Ermittlung des Projektbudgets
  • Vorabstimmung mit dem Bauamt zur Klärung der Genehmigungsfähigkeit

Genehmigung/ Vergabe

  • Erstellung der Entwurfs- und Genehmigungsplanung
  • Erstellung der Bauantragsunterlagen 
  • Ausschreibung und Vergabe sämtlicher Bauleistungen
  • Professionelles Projektmanagement und Koordination der Gewerke 

Ausführung/ Überwachung

  • Eintaktung der Gewerke, um einen reibungslosen Bauablauf zu gewährleisten
  • Prüfung der Bauqualität durch  regelmäßige Baustellenbegehungen
  • Prüfungen von Optimierungen im Bauablauf und der Planung
  • Gemeinsame Bemusterung der Objektqualitäten 

Übergabe/ Betreuung

  • Durchführung einer gemeinsamen Abnahme und Einholung aller Sachverständigen Abnahmen
  • Sicherstellung einer reibungslosen Übergabe der schlüsselfertigen Immobilie 
  • Übergabe der Revisionsunterlage
  • Ansprechpartner bei Gewährleistungsfragen 

Sie können hierbei völlig flexibel entscheiden, welche Leistungen wir für Sie übernehmen sollen und welche Arbeiten Sie selbst durchführen möchten.

Muster Mehrfamilienhausplanung

Nach einem gemeinsamen Austausch zu Ihren Vorstellungen und den baulichen Gegebenheiten Ihres Grundstücks erstellen wir für Sie ein Konzept, wie die künftige Immobilie aussehen könnte. Im Anschluss errichten wir Ihr Gebäude schlüsselfterig für Sie. 

Muster Lageplankonzept

Wir prüfen die baurechtlichen Gegebenheiten wie B-Plan, Stellplatz- und Entwässerungssatzung. 

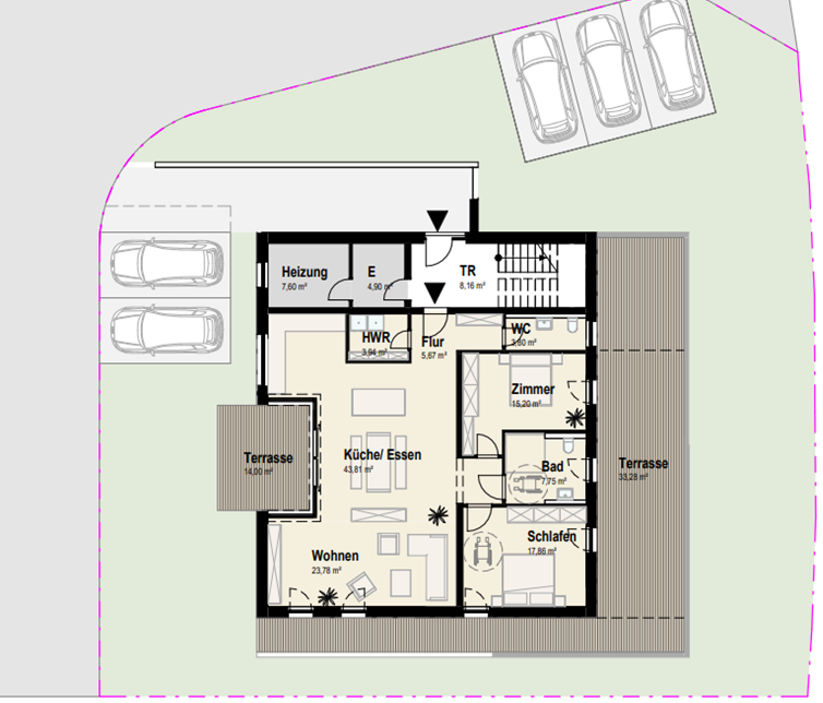
Muster Grundriss

Aufgrund Ihren Wünschen wird ein Grundrissentwurf erstellt. 

Wir freuen uns auf Ihre Nachricht!

Wir benötigen Ihre Zustimmung zum Laden der Übersetzungen

Wir nutzen einen Drittanbieter-Service, um den Inhalt der Website zu übersetzen, der möglicherweise Daten über Ihre Aktivitäten sammelt. Bitte überprüfen Sie die Details in der Datenschutzerklärung und akzeptieren Sie den Dienst, um die Übersetzungen zu sehen.